
Plans d'intérieur à Lyon 7ème arrondissement
Notre projet consistait à élaborer les plans d'intérieur détaillés d'un bâtiment historique situé dans un quartier emblématique du 7ème arrondissement de Lyon.
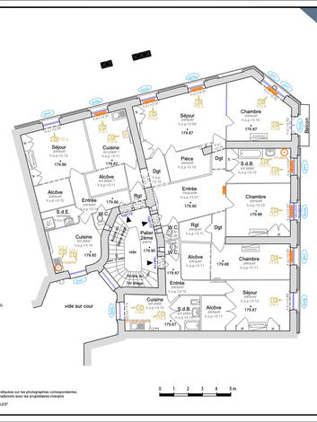
Notre mission a impliqué l'utilisation de la technologie de pointe du scanner laser 3D pour effectuer des relevés exhaustifs de chaque niveau de ll'immeuble, englobant des espaces variés tels que le sous-sol, le rez-de-chaussée, plusieurs étages et même les combles. Nous avons réalisé des plans à l'échelle 1/100ème, rattachés au système de coordonnées planimétrique RGF93 - CC46 et au système NGF-IGN 1969 pour le nivellement.
Dans notre démarche méticuleuse, nous avons représenté tous les éléments structurels apparents, notamment les murs, poteaux, poutres, et autres éléments architecturaux. Les détails tels que les cloisons, portes, fenêtres, et même les éléments plus fins comme les gaines, sanitaires et placards, ont été soigneusement relevés. Nous avons également porté une attention particulière à la nature des sols, aux hauteurs sous plafond et sous poutre, ainsi qu’à l'altimétrie des planchers.
Notre mission s'est étendue au-delà des simples plans de précision : nous avons effectué un constat précis de l’état des installations, incluant les menuiseries extérieures et les systèmes de chauffage et d'eau chaude sanitaire, en identifiant les types, matériaux, marques, et autres spécificités techniques.
Finalement, nous avons fourni à notre client l’ensemble des plans en formats DWG et PDF, témoignant de notre engagement à allier précision, technique et satisfaction clientèle.











